アクアタワービル あくあたわーびる
青い外壁が目を引くスタイリッシュなオフィスビルです。【リーシング業務受託】
物件概要
- 所在地
- 大阪市中央区北浜東6番6号
- 交通
- 大阪メトロ堺筋線「北浜」駅 徒歩6分 大阪メトロ谷町線「天満橋」駅 徒歩7分
- 敷地面積
- 189.01㎡ (57.18坪)
- 延床面積
- 1,510.13㎡ (4,992.22坪)
- 規模
- 地上10階・地下1階
- 構造
- 鉄骨鉄筋コンクリート造
- 竣工
- 1992年2月
- 外装
- コンクリート及びカーテンウォール
- 施工会社
- 株式会社大林組
- 取引態様
- リーシングマネジメント業務受託




-
外観 -
ビルからの眺望 -
ビルからの眺望2 -
エレベーターホール
設備概要
- 電気設備
- 高圧受電設備
- 空調設備
- 個別空調設備
- 天井高
- 2,500mm(OAフロア設置前)
- 床仕様
- OAフロア 50mm+タイルカーペット
- 床荷重
- 300kg/㎡
- 給湯設備
- 各階給湯コーナー
- エレベータ
- 乗用9人乗 2台
- 光ファイバー
- コンセント容量
- 動力 13.85kVA、電灯 6.18kVA、OA 10.00kVA
- トイレ
- 各階男女別、1階は男女共用
- 管理形態
- 機械警備(キーボックスタイプ)
- 駐車場
- なし
- 開館時間
- 9:00~18:00(祝日閉館) 24時間カードにて入退館可能
- 備考
- ・年末年始休館/電気設備の停電作業は年1回 ・地上波デジタル対応済
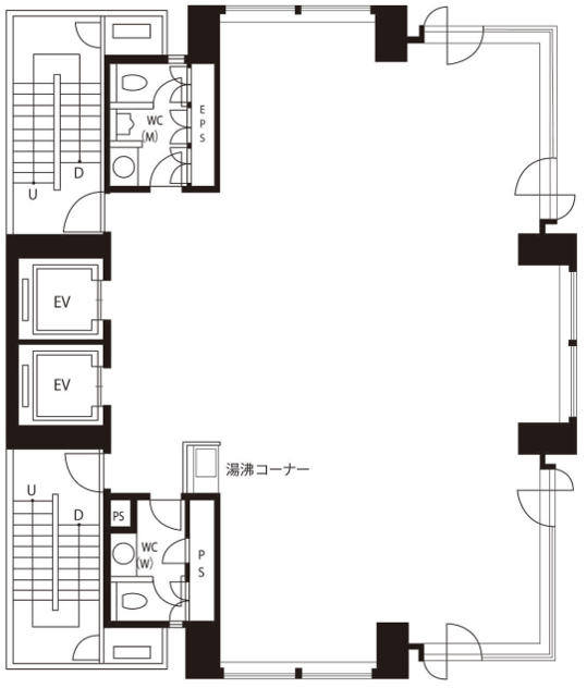
基準階平面図

基準階貸室面積/ 127.12㎡ (38.45坪)
地図
この物件へのお問い合わせ
お電話でのお問い合わせ
(近畿圏)
06-6314-5222
月~金 9:00~17:30/土日祝休み